
南丰生命科技智汇空间
生命科技的创新『孵化器』
顺应生命科技领域的前沿需求,位于上海外高桥保税区芬菊路188号的南丰创科智汇谷,将在园区内高标准打造共享实验室——【南丰生命科技智汇空间NF BIOTECH HIVE】,并提供包括研发创新共享平台、全周期的实验空间服务管理、全球视野的产业咨询和投融资支持等完整产业生态服务。
NF BIOTECH HIVE位于南丰创科智汇谷1号楼首层。其设计和建造对标国际领先水准的生命科学领域专业基础设施,集合了实验、办公、会议、餐厅等需求场景,配备有高标准分子实验室、细胞实验室、P2+实验室及共享实验平台、路演厅、独立办公室、休闲餐吧等多功能空间,并运用智能系统进行科学管理,通过高效和专业的研发服务体系来实现生命科学创新、创业各个元素之间的紧密耦合。
温馨提示:仪器设备配置仅供参考,最终以实际交付情况为准。
可定制化仪器配套
传递窗
更衣柜
此外,NF BIOTECH HIVE还聘请了经验丰富的专业实验室运营服务团队,服务内容涵盖供应链管理、IT、EHS、废弃物处理、仪器管理、工程运维、安防监控、清洁洗消等,从入驻伊始,全方位全天候保障入驻团队的研发实验工作。
P2+高安全性实验室
守护每一份创新
NF BIOTECH HIVE在P2+设计及建造标准的基础上,提供:
此外,细胞实验室配置应急备用空调 ,分子实验室全新风系统通过100%室外新风输入,确保实验室内部空气零回风,杜绝有害气体(如挥发性化学品、有毒气体)在室内循环积累,降低安全风险。
灵动空间设计
让空间适应科研的步伐
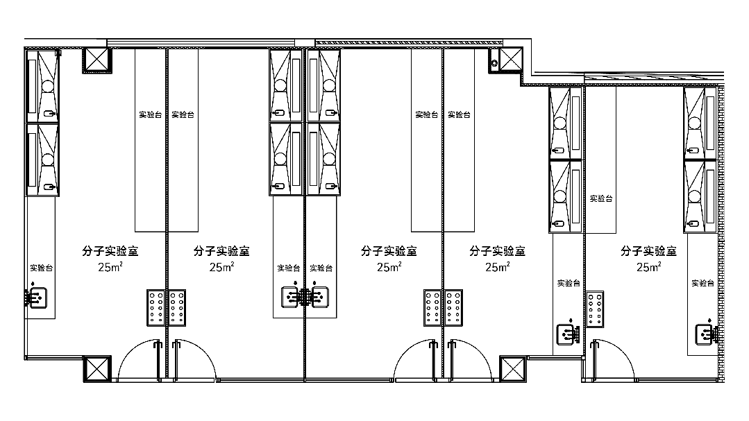
1.可空间重组的分子实验室及办公空间
NF BIOTECH HIVE内的分子实验室及办公室采用可拆卸隔断,灵活配置市场客户多种空间需求。每个分子实验室单间面积约25平米,共计5间。拆除隔断后,将形成2间约50平米分子实验室和1间25平米分子实验室。
以实际交付情况为准
2. 可移动式实验家具配合功能柱
●可拆卸、重新组合的实验家具,如实验台、储物柜等,可根据需求进行灵活布局调整
●集成电力、气体、水等多种设施于一体的功能柱,局部也可根据需求进行调整
3. 灵动多功能共享空间
公区大堂、会议室、餐饮休闲区采用半敞开式活动门设计,可根据使用需求,灵活布置为会客接待、路演交流、餐饮休闲空间。
智能化系统运营管理
让数据和信息触手可及
BLM Digital数字化物业沟通跟踪平台,及时收到入驻企业日常碰到的问题,完成报修、跟踪、整理和改进的闭环。
未来的生命科技产业园区,不仅是高标准实验室的集合地,更是创新与安全的融合体。在这里,每一位科研人员都能在一个安全、灵活、智能的环境中,自由地探索生命的奥秘。我们邀请您加入这场科技与未来的探索,共同见证生命科技的下一个突破。